Connect With Us
Home
About Us
Services
Gallery
Projects
MASTER PLANNING AND DEVELOPMENT
NEW BUILD DESIGNS
EXTENSIONS AND INTERNAL ALTERATIONS
COMMERCIAL DEVELOPMENT
LOFT CONVERSION
MEASURED BUILDING SURVEY
CHANGE OF USE
PLANNING DRAWINGS
BUILDING REGULATION DRAWINGS
Contact Us
Home
About Us
Services
Gallery
Projects
MASTER PLANNING AND DEVELOPMENT
NEW BUILD DESIGNS
EXTENSIONS AND INTERNAL ALTERATIONS
COMMERCIAL DEVELOPMENT
LOFT CONVERSION
MEASURED BUILDING SURVEY
CHANGE OF USE
PLANNING DRAWINGS
BUILDING REGULATION DRAWINGS
Get In Touch
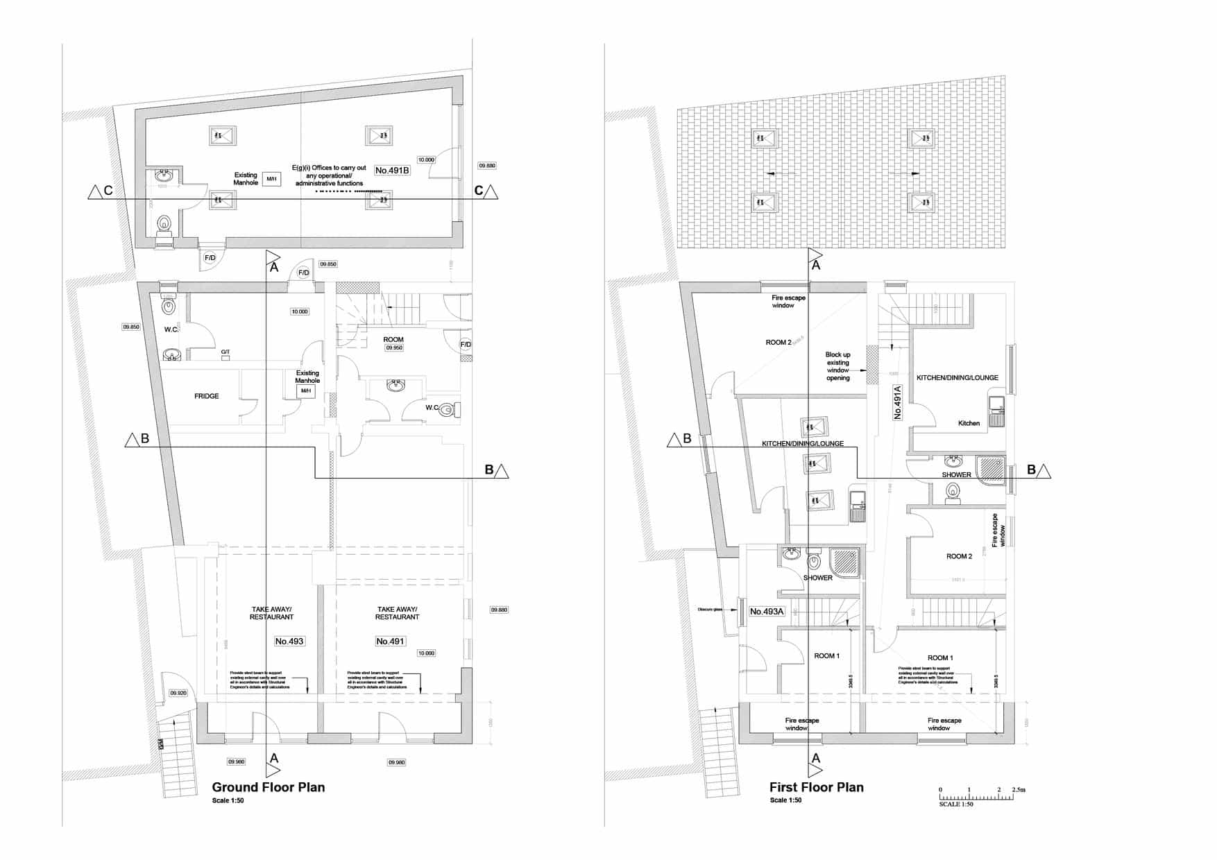
COMMERCIAL DEVELOPMENT
Home
/
COMMERCIAL DEVELOPMENT
Project
01
Project
02
Project
03